Contact
About
Home
936.228.9392
"It's Not the Will to Win but the Will to Prepare to Win That Makes the Difference."
Paul "Bear" Bryant
  • Quality Control
    • Commitment & Assurance
    • Document Control & Record Maintenance
    • Manuals & Procedures in Accordance with ISO 9001
    • Procedures & Specifications
    • Traceability
  • Engineered Products
    • Custom Work Platforms & Scaffolds
    • Drilling Equipment
    • Fixtures & Stands
    • Heavy Equipment Dollies
    • Hose Reels & Spoolers
    • Intervention Tooling
    • Lifting & Overboarding Frames
    • Manufacturing Specialty Machinery
    • Net Guards & Protective Structures
    • Pipe Handling Bolsters
    • ROV Tooling
    • Shipping Baskets, Tool Boxes & Skids
    • Umbilical Sheaves
  • Project Management
    • Deepwater Feasibility Studies
    • Offshore & Onshore Supervision
    • Pipeline Pig Qualification Testing
    • SIT - System Integration Testing
  • Services & Equipment
    • Engineering
    • MOVIES
    • Publications Available
    • Subsea Completions & Interventions
 
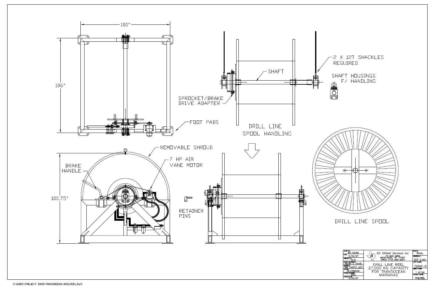
Drill Line Reels

Our Drill Line Reel Design is consistent with our Hose Reel Design features with the exception of the drive mechanism and a number of other minor features to reduce cost.

 

Other Products & Services Related to Drill Line Reels
Drill Line Reels | Spoolers | Umbilical Hose Reels |
Browse Our Site
  • Homepage
  • About Us
  • Contact Us
  • Quality Control
  • Engineered Products
  • Project Management
  • Services & Equipment
  • Privacy & Disclaimers
  • Login
Industry Relevance
  • Drilling Equipment
  • BOP Adapter Kits
  • ROV Tooling
  • Intervention Tooling
  • SubSea Completions
  • Project Management
  • Client Representation
  • Structural Calculations
  • Lifting Calculations
  • Cathodic Protection
  • Sea Floor Bearing
  • Hydrostatic Calculations
  • Fluid Rheology
 
  • Hose Reels & Spoolers
  • Umbilical Sheaves
  • 17G Upgrades
  • Derrick Sheaves
  • Net Guards
  • Protective Structures
  • Pipe Handling Bolsters
  • Work Baskets
  • Shipping Skids
Our Partners
  • K4 Engineering & Fabrication
  • Conroe Computer Services
Related Specifications
  • ISO 9001
  • API 6A, 17D & 17G
  • DNV 2.7-1 & 2.7-3